Leśny Zakątek III
Skontaktuj się z nami
tel. +48 530 001 086
Email: biuro@rdevelopment.pl
Przytulne osiedle położone w spokojnej okolicy w zabudowie bliźniaczej z przynależną działką (349m2 – 378m2). Dom do odbioru Sierpień 2024r w stanie deweloperskim Premium z piecem gazowym i grzejnikami, ogrzewanie podłogowe na parterze oraz w łazience na piętrze. Położony w Józefowie k. Legionowa w cichej okolicy w sąsiedztwie Lasów, dojazd bezpośrednio z ulicy Strużańskiej drogą z kostki brukowej. Dom w super lokalizacji blisko Warszawy 5km i Legionowa 3km
Inwestycja dedykowana jest dla osób chcących zamienić mieszkanie na dom z własnym ogródkiem, w korzystnych cenach zachowując bliskość miasta.
O inwestycji
- Powierzchnia działki od 349m2 do 378m2
- Parter: 64.16 m2 – salon z aneksem kuchennym, łazienka i garaż.
- Piętro: 64,09 m2 – 3 pokoje oraz przestronna łazienka.
- Strych do własnej aranżacji. Można uzyskać aż do 40m2 adaptując strych do własnych potrzeb.
- Dom przestrzenny wygodny i funkcjonalny.
- Nowoczesna architektura- liczne przeszklenia w salonie.
- Garaż połączony z domem.
- Dogodny dojazd Warszawa dzielnica Białołęka, Legionowo.
- Liczne ścieżki rowerowe – nowo pobudowana ścieżka rowerowa do Legionowa i Zalewu Zegrzyńskiego
- Idealny dla rodzin.
- Dla ceniących spokój i naturę.
LOKAL A
Parter:
| 1 | wiatrołap | 5,30m2 |
| 2 | wc | 2,41m2 |
| 3 | salon + kuchnia + schody | 31,62m2 |
| 4 | garaż | 20,60m2 |
| 5 | c.o. | 4,23m2 |
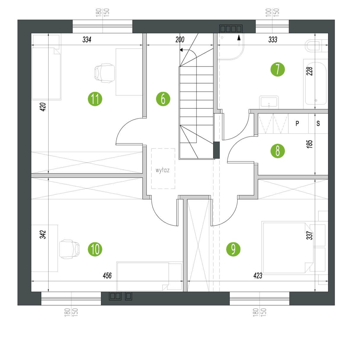
Piętro:
| 6 | hol + schody | 10,80m2 |
| 7 | łazienka | 7,59m2 |
| 8 | pralnia | 3,90m2 |
| 9 | sypialnia | 12,98m2 |
| 10 | sypialnia | 14,80m2 |
| 11 | sypialnia | 14,02m2 |
LOKAL B
Parter:
| 1 | wiatrołap | 5,30m2 |
| 2 | wc | 2,41m2 |
| 3 | salon + kuchnia + schody | 31,62m2 |
| 4 | garaż | 20,60m2 |
| 5 | c.o. | 4,23m2 |
Piętro:
| 6 | hol + schody | 10,80m2 |
| 7 | łazienka | 7,59m2 |
| 8 | pralnia | 3,90m2 |
| 9 | sypialnia | 12,98m2 |
| 10 | sypialnia | 14,80m2 |
| 11 | sypialnia | 14,02m2 |
TECHNOLOGIE ENERGOOSZCZĘDNE
Wszystko, co pozwala utrzymać wydatki na niskim poziomie, bez rezygnacji z komfortu
- Ściany zewnętrzne murowane z pustaków gazobetonowych ocieplone styropianem oraz otynkowane
- Ściany fundamentowe z bloczków betonowych ocieplone styropianem Aqua Stop
- Ławy fundamentowe monolityczne z betonu
- Ściany działowe wewnętrzne murowane z pustaków gazobetonowych
- Kominy systemowe
- Stropy monolityczne żelbetowe
- Schody żelbetowe
- Dach drewniany krokwiony zbezpieczony membraną i pokryty dachówką betonową
- Parapety zewnętrzne z blachy ocynkowanej
- Tynki Gipsowe na ścianach i sufitach
- Wylewka betonowa na podłogach
- Przyłącze do sieci wodociągowej, gazowej oraz energetycznej
- Szambo 10m3
- Instalacje wewnętrzne zimnej i ciepłej wody, centralnego ogrzewania, elektryczne 230V + obwód 400V zasilający płytę elektryczną w kuchni oraz instalacja alarmowa
- Wentylacja grawitacyjna + kanał wentylacyjny do okapu w kuchni
KOMUNIKACJA
W środku wsi, na skraju lasu, ale w pobliżu miasta. Pełna infrastruktura pod ręką:
- Komunikacja miejska ok. 200m do przystanku autobusowego linii 736, L333, D1 do Legionowa i Warszawy
- Warszawa 5km
- Legionowo 3km
- Szkoła Podstawowa 2,5km
- PKP Legionowo 5km
- Kościół 2,5km
- Biedronka 5,5km
- LIDL 6,5 km
- Aquapark Fala Nieporęt 6,5km
- Basen Legionowo 8km
- Kino Legionowo 5,6km
- OBI Jabłonna 7km
- Leroy Merlin 6,5km
- Galeria Północna 11km
- CH Targówek 15km
- IKEA 16km
- Metro Młociny 16km
- Zalew Zegrzyński Plaża 10km
NOWOCZESNE WYPOSARZENIE
Przestrzeń, wygoda, funkcjonalność, a także możliwość łatwej zmiany
- Okna 3-szybowe 5-komorowe z nawiewnikami
- Drzwi Zewnętrzne Stalowe Premium
- Brama Garażowa segmentowa automatyczna Premium
- 3 pokoje na górze z przestronną łazienką
- Duże poddasze
- Klasyczna nowoczesna architektura
- Liczne przeszklenia w salonie dające poczucie przestrzeni
- Własny ogródek z przestronną działką
Inwestycja zlokalizowana jest miejscowości Józefów, w powiecie legionowskim, gminie Nieporęt.
Z jednej strony graniczy z dzielnicą Warszawa Białołęka, z dugiej zaś z miastem Legionowo.
Doskonale skomunikowana z Warszawą i Legionowem.
W Józefowie znajduje się szkoła podstawowa, kościół i przedszkole.
Najbliższy sklep spożywczy w odległości 300 m.
Blisko las i woda.
Gmina Nieporęt to jedna z najbardziej prężnych gmin w kraju.
Bliskość Jeziora Zegrzyńskiego pozwala wypocząć po pracy.
Okoliczne lasy dają poczucie bliskości z przyrodą.
Masz pytania
Zapraszamy do kontaktu. Odpowiemy na Twoje wszytkie pytania i wątpliwości.
Royal Development Sp. z o.o.
ul. Szkolna 37, 05-119 Józefów
KRS 0000593599
Tel. +48 530 001 086